Ванные комнаты

1

Площадь, м²

5573

Тип

Комерческое

более

3 лет назад

Просмотры

7457

Weens Alquila : Local Comercial En Esquina, Ideal Para Showroom. San Isidro

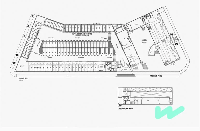
WEENS ALQUILA  MEGA LOCAL COMERCIAL DE 5,573.59 M2 A.O. EN EXCELENTE UBICACIÓN DEL CENTRO  DE SAN ISIDRO Ubicado en zona estratégica en avenida principal, cerca a Vía expresa Paseo de la República y Javier PradoZonificación : Comercial MetropolitanoEstado : Local ImplementadoÁreas:Área Ocupada : 5,573.59 m2Área de Showroom : 623.3 m2Área  Administrativa : 336.35 m2Patio de Exhibición : 793.50 m2Playa de Estacionamiento : 3,820.44 m2...................................¿Estás interesado en este LOCAL COMERCIAL y deseas reservar una cita?Envíanos un mensaje con tus datos, los de tu empresa y a la brevedad uno de nuestros asesores se comunicará contigo.WEENS Agencia Inmobiliaria Corporativa expertos en OFICINAS, LOCALES, ALMACENES y TERRENOS.WEENS Profesionales trabajando para hacerte la vida más fácil. WEENS UNA MARCA DEL GRUPO EALC , ESPECIALIZADOS EN LA COMERCIALIZACION DE INMUEBLES EN PERÚ

Характеристики

ID

Тип

Площадь, м²

Вся постройка, м²

177872

Аренда

5573

959

Ванные комнаты

Ссылка

Обновлено

1

J7D70C

2022-07-06

Район

120 S/

Район

Lima

Адрес

San Isidro

Дополнительные действия

EALC Empresas
959...339
519...339
Похожие объекты
Загрузка...
Зарабатывайте деньги привлекая коллег!

Приглашайте других агентов по недвижимости и получайте 10% комиссии с каждого их продвижения.