Ванные комнаты

1

Площадь, м²

5573

Тип

Комерческое

более

3 лет назад

Просмотры

7224

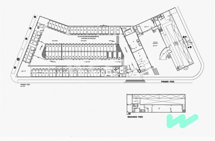
Weens Alquila : Local Comercial En Esquina 5,573 M2 área Ocupada. San Isidro

WEENS ALQUILA  MEGA LOCAL COMERCIAL DE 5,573.59 M2 A.O. EN EXCELENTE UBICACIÓN DEL CENTRO  DE SAN ISIDRO . IDEAL PARA SHOWROOMUbicado en zona estratégica en avenida principal, cerca a Vía expresa Paseo de la República y Javier PradoZonificación : Comercial MetropolitanoEstado : Local ImplementadoÁreas:Área Ocupada : 5,573.59 m2Área de Showroom : 623.3 m2Área  Administrativa : 336.35 m2Patio de Exhibición : 793.50 m2Playa de Estacionamiento : 3,820.44 m2...................................¿Estás interesado en este LOCAL COMERCIAL y deseas reservar una cita?Envíanos un mensaje  con tus datos, los de tu empresa y a la brevedad uno de nuestros asesores se comunicará contigo.WEENS Agencia Inmobiliaria Corporativa expertos en OFICINAS, LOCALES, ALMACENES y TERRENOS.WEENS Profesionales trabajando para hacerte la vida más fácil. WEENS UNA MARCA DEL GRUPO EALC , ESPECIALIZADOS EN LA COMERCIALIZACION DE INMUEBLES EN PERÚ

Характеристики

ID

Тип

Площадь, м²

Вся постройка, м²

177871

Аренда

5573

959

Ванные комнаты

Ссылка

Обновлено

1

AA804F

2022-07-06

Район

120 S/

Район

Lima

Адрес

San Isidro

Дополнительные действия

EALC Empresas
959...339
519...339
Похожие объекты
Загрузка...
Зарабатывайте деньги привлекая коллег!

Приглашайте других агентов по недвижимости и получайте 10% комиссии с каждого их продвижения.