Miraflores, Calle Enrique Palacios - Miraflores

U$S 334,328

~27,000,000 ₽ / U$S 2,592/m2

Спальни

3

Ванные комнаты

2

Площадь, м²

129

Тип

Квартиры

более

4 месяцев назад

Просмотры

516

Departamento 3 Dorm Con Terraza En Primer Piso - Estreno

EDIFICIO DE 9 PISOS, HERMOSO DISEÑO DE ESTILO VANGUARDISTA PARA INICIAR UNA NUEVA VIDA.

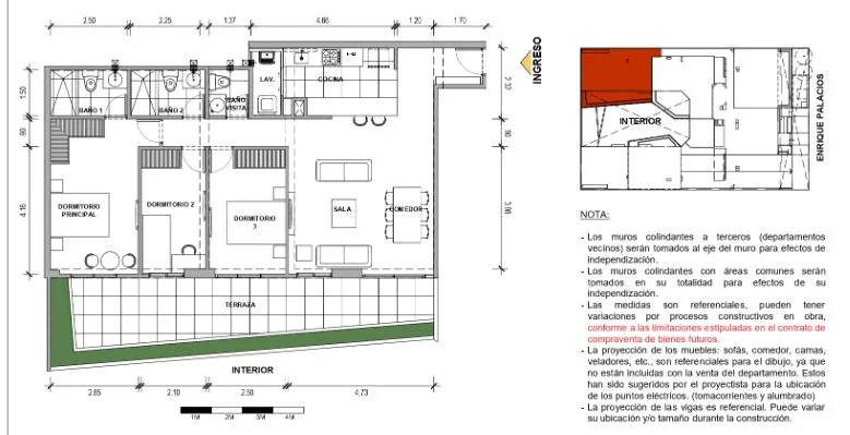
Piso : Primer piso
Área: .129.30 m2
Vista: Interna
Valor: S/ 1,120,000

DISTRIBUCIÓN
• Kitchenette con mesón de cuarzo blanco
• Sala  y terraza 1° nivel .
• Dormitorio principal con baño.
• 2 dormitorios
• Baño completo
• Lavandería.
• Baño de visita.

ACABADOS DE CALIDAD

• Piso vinílico SPC, acabado tipo madera anti-ruido.
• Mamparas con vidrios templados.
• Muebles de cocina en melamina, con acabado tipo gloss.

**AGENDA UNA VISITA POR WHATSAPP**

CONCEPTO RESIDENCIAL eco-amigable: griferías ahorradoras y  panales solares.
                                   
**OPCIONAL**
Cochera  :  S/ 60,000

Financia : BBVA
Entrega : Inmediata

FOTO REFERECIAL DEL SEGUNDO PISO

Tipo de cambio referencial. EL PRECIO ES EN SOLES

Referencia: DC-VTA-D-THU-T18-3

Характеристики

ID

Тип

Площадь, м²

Вся постройка, м²

1242198

Продажа

129

99

Спальни

Ванные комнаты

Ссылка

Обновлено

3

2

DA831E

2025-09-10

Район

334.3к U$S

Район

Lima

Адрес

Miraflores, Calle Enrique Palacios - Miraflores

Удобства

Балкон

Склад

Зона барбекю

Лифт

Игровая комната

Прачечная

Гостиная-столовая

Разрешены домашние животные

Дополнительные действия

D´MAYO REAL ESTATE
912926197
Похожие объекты
Загрузка...
Зарабатывайте деньги привлекая коллег!

Приглашайте других агентов по недвижимости и получайте 10% комиссии с каждого их продвижения.