Santiago De Surco, Av. Encalada 12xx Of 1202-1204

U$S 5,372

R$ ~28,800

Banheiros

3

Garagem

5

M² construído

398

Ano de construção

2020

Tipo de propriedade

Escritório

mais do que

10 meses

Visualizações

752

Alquiler Oficina Semi Implementada En Surco - Of 1202-1204 (609-349-1)

La Oficina 1202-1203-1204, disponible para alquiler en un moderno edificio empresarial de estreno, ofrece un espacio ideal para actividades comerciales. Ubicada en el piso 12 y con vista a la calle, esta oficina se presenta en impecables condiciones y con características que la convierten en una elección destacada para empresas en crecimiento.

Con zonificación cz y la licencia correspondiente, la oficina cuenta con planos que facilitan su adaptación a las necesidades específicas del negocio. El edificio, de 14 pisos, cuenta con un lobby de doble altura que crea una impresión impactante desde el momento en que se ingresa. Además, ofrece servicios esenciales como zona de proveedores, cuatro ascensores con tarjetas electromagnéticas para un acceso seguro, cuarto de control de seguridad, grupo electrógeno para áreas comunes y aire acondicionado centralizado, brindando un entorno empresarial cómodo y eficiente.

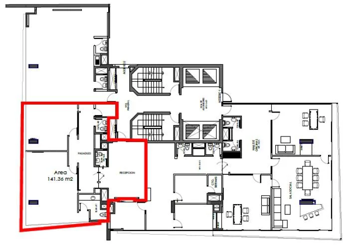
La Oficina 1202-1204 cuenta con una distribución inteligente, incluyendo un ingreso principal, un amplio ambiente con capacidad para hasta 10 espacios individuales, kitchenette, tres baños individuales y un área destinada para la oficina gerencial. La oficina viene semi-implementada con detalles que agregan valor, como pisos de porcelanato, techo de cielo raso con iluminarias, detectores de humo y aspersores, así como luces de emergencia y una instalación de cableado estructurado que proporciona una infraestructura lista para su uso.

El alquiler de esta oficina incluye un total de tres cocheras paralelas ubicadas en el sótano del edificio, garantizando un cómodo estacionamiento para los colaboradores y visitantes. La entrega inmediata de esta oficina brinda la oportunidad de establecerse y comenzar las operaciones sin demora.

En resumen, la Oficina 1202-1204 representa una opción atractiva para aquellos que buscan un espacio moderno, bien diseñado y funcional en un entorno empresarial que promueve la eficiencia y la comodidad.

SE ALQUILAN POR SEPARADO TAMBIÉN.OF. 1202: 174 MTS A $2,349
OF. 1203: 110.50 MTS A $1,491
OF. 1204: 113.55 MTS A $1,532

INCLUYE 8 COCHERAS, CADA UNA A $140 + IGV

ENTREGA INMEDIATA

Detalhes da propriedade

ID

Tipo de propriedade

Tipo de operação

M² construído

Banheiros

1016440

Escritório

Aluguel

398

3

Garagem

Ano de construção

Referência

Atualizada

5

2020

H29CFA

2025-02-28

Localização

5.4к U$S

Localização

Lima

Endereço

Santiago De Surco, Av. Encalada 12xx Of 1202-1204

Confortos de propriedade

WiFi

Instalação de TV a Cabo

Provisão para Ar Condicionado

Ar Condicionado

Aquecimento

Ações Adicionais

MIER Y TERAN ASOCIADOS AGENTES INMOBILIARIOS
998...335
519...335
Objeto similar
Carregando...
Ganhe dinheiro indicando colegas!

Convide outros corretores de imóveis e ganhe 10% de comissão por cada promoção que fizerem.