Santiago De Surco, Av. Circunvalacion Golf Los Incas 1xx Dpto 703

U$S 2,700

R$ ~14,500

Quartos de dormir

5

Banheiros

2

Garagem

5

M² construído

192

Ano de construção

2021

Tipo de propriedade

Escritório

mais do que

10 meses

Visualizações

1034

Alquiler Oficina En Gris En Surco - Of 703 (609-349-25)

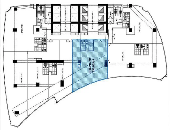
La Oficina 703, disponible para alquiler, ofrece un espacio versátil y estratégicamente ubicado en el séptimo piso de un moderno edificio empresarial en Surco. Con orientación hacia la calle, en gris y en estado impecable, esta oficina está diseñada para adaptarse a diversas necesidades comerciales.

Con zonificación cz y licencia correspondiente, esta oficina es ideal para actividades comerciales y proporciona un lienzo en blanco para personalizar el espacio según las necesidades específicas del negocio. Además, cuenta con planos que facilitan la planificación y configuración del espacio según los requerimientos individuales.

El edificio, con tan solo cuatro años de antigüedad, destaca por su modernidad y eficiencia, con una certificación LEED SILVER que refleja su compromiso con la sostenibilidad. Con 24 pisos, seis ascensores y estacionamientos de visitas, garantiza accesibilidad y comodidad para los ocupantes. Su diseño incluye un sistema de aire acondicionado centralizado, muro cortina de vidrio insulado y hasta un helipuerto, proporcionando un entorno empresarial de primer nivel.

Las áreas comunes del edificio, distribuidas en diferentes niveles, añaden valor a la experiencia de trabajo. Desde el lobby y control de accesos hasta salas de conferencias, gimnasio, spa y terraza, se brindan servicios y comodidades que mejoran la calidad de vida laboral. El edificio también cuenta con una cochera para visitas, lo que facilita la llegada y salida de clientes y colaboradores.

La Oficina 703, en su configuración en gris, ofrece un amplio ambiente para distribuir, permitiendo la creación de hasta diez espacios individuales. Además, cuenta con un área destinada para kitchenette y dos baterías de baños, asegurando la comodidad y funcionalidad del espacio de trabajo.

El alquiler de esta oficina incluye tres cocheras simples y una doble en el sótano, proporcionando un amplio espacio de estacionamiento para los ocupantes y visitantes. En resumen, la Oficina 703 en este edificio empresarial representa una oportunidad única para establecerse en un entorno empresarial de calidad y con todas las comodidades necesarias.

Detalhes da propriedade

ID

Tipo de propriedade

Tipo de operação

M² construído

Quartos de dormir

1015780

Escritório

Aluguel

192

5

Banheiros

Garagem

Ano de construção

Referência

Atualizada

2

5

2021

TA5374

2025-02-28

Localização

2.7к U$S

Localização

Lima

Endereço

Santiago De Surco, Av. Circunvalacion Golf Los Incas 1xx Dpto 703

Confortos de propriedade

Box

Academia

Sala de Jogos

WiFi

Instalação de TV a Cabo

Provisão para Ar Condicionado

Ar Condicionado

Aquecimento

Ações Adicionais

MIER Y TERAN ASOCIADOS AGENTES INMOBILIARIOS
998...335
519...335
Objeto similar
Carregando...
Ganhe dinheiro indicando colegas!

Convide outros corretores de imóveis e ganhe 10% de comissão por cada promoção que fizerem.