Jesus Maria, Calle Caracas N°22xx

U$S 6,500

R$ ~34,900

Quartos de dormir

5

Banheiros

3

Garagem

8

M² construído

526

Tipo de propriedade

Escritório

mais do que

11 meses

Visualizações

961

Alquiler Casa Para Oficina Jesus Maria

Cuenta con jardin frontal, espacio para 8 autos y jardin interno. Mayoría de ambientes con aire acondicionado, persianas, alfombras o pisos de parquet o de loseta. Pozo a tierra, cableado de red y telefónica. 4 Cámaras de seguridad (dos exteriores, en recepción y jardín posterior); tanque elevado, tanque cisterna y bomba de agua. Esta distribuida en 3 pisos

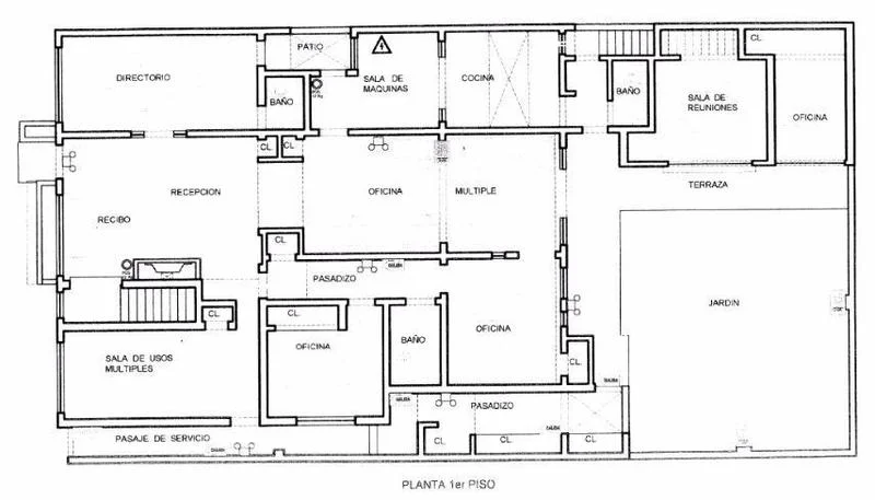
PRIMER PISO:
Recepción con chimenea, directorio con baño de visita, cocina, oficina con conexión para proyecciones y equipos multimedia.
4 oficinas (dos de ellas frente al jardín interior y una con ventana al jardín interior), un área grande, dos baños (damas y caballeros), 4 closets, jardín interior, salida auxiliar por pasadizo de servicios y/o emergencia, lavadero.

SEGUNDO PISO:
Cuenta con oficina con balcón vista al parque y chimenea, 7 oficinas, un área grande, dos baños (damas y caballeros), kitchenette, 6 closets, balcón vista jardín interior.

TERCER PISO (azotea):
Baño completo y almacén pequeño. Área libre para ampliaciones de aprox. 120m2.

CUENTA CON LICENCIA 

Detalhes da propriedade

ID

Tipo de propriedade

Tipo de operação

M² construído

Quartos de dormir

1015823

Escritório

Aluguel

526

5

Banheiros

Garagem

Referência

Atualizada

3

8

W3B396

2025-02-28

Localização

6.5к U$S

Localização

Lima

Endereço

Jesus Maria, Calle Caracas N°22xx

Confortos de propriedade

Box

Terraço

WiFi

Instalação de TV a Cabo

Provisão para Ar Condicionado

Pátio

Lavanderia

Ações Adicionais

MIER Y TERAN ASOCIADOS AGENTES INMOBILIARIOS
998...335
519...335
Objeto similar
Carregando...
Ganhe dinheiro indicando colegas!

Convide outros corretores de imóveis e ganhe 10% de comissão por cada promoção que fizerem.