Santiago De Surco, Av. El Derby Xxx Of 411

S/ 15,056

$ ~4,455

Baños

3

Garaje o Cochera

1

M² edificados

263

Año de Construcción

2009

Tipo de Propiedad

Oficina

Publicado

6 días

Vistas

31

Alquiler Oficina En Gris En Surco - Of 411 - T4 (609-136-87)

EDIFICIO EMPRESARIAL CRONOSComplejo empresarial moderno que ofrece un entorno ideal para el desarrollo de actividades corporativas, combinando comodidad, seguridad y eficiencia. Está conformado por 4 torres de 10 niveles cada una, lo que permite una adecuada organización de oficinas y un flujo ordenado de personas. Cada torre dispone de 4 ascensores, alcanzando un total de 16, lo que facilita un acceso rápido y sin demoras.

El ingreso principal cuenta con una recepción funcional y sistema de control de accesos, brindando seguridad y una atención adecuada a visitantes. Asimismo, el edificio dispone de vigilancia las 24 horas. En el primer nivel se encuentran locales comerciales que aportan practicidad, además de estacionamientos para visitas y zonas destinadas al uso de bicicletas.

Entre sus espacios compartidos destacan 4 salas de usos múltiples, ideales para reuniones de trabajo, capacitaciones o eventos empresariales. También cuenta con una terraza rooftop que ofrece un ambiente agradable para pausas o reuniones informales, y un área de cafetería que suma comodidad al día a día laboral.

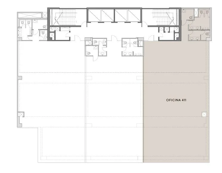
OFICINA 411 – TORRE 4

Oficina de generosas dimensiones en estado gris, perfecta para ser implementada a medida. Incluye un área destinada para recepción, kitchenette y 3 baños, brindando funcionalidad para distintos equipos de trabajo. Su distribución abierta permite diseñar espacios según las necesidades, ya sea con oficinas privadas, salas de reuniones o estaciones colaborativas.

COCHERAS DISPONIBLES A COSTO ADICIONAL: $140 CADA UNA.

Detalles de la Propiedad

ID

Tipo de Propiedad

Tipo de Operación

M² edificados

Habitaciones

1476672

Oficina

Alquiler

263

1

Baños

Garaje o Cochera

Año de Construcción

Referencia

Actualizado

3

1

2009

C12E94

2026-04-11

Ubicación

15.1к S/

Ubicación

Lima

Dirección

Santiago De Surco, Av. El Derby Xxx Of 411

Comodidades de la propiedad

Terraza

WiFi

Instalación de TV cable

Aire Acondicionado

Calefacción

Acciones Adicionales

MIER Y TERAN ASOCIADOS AGENTES INMOBILIARIOS
+51...335
519...335
Objeto similar
Cargando...
¡Gana dinero refiriendo colegas!

Invita a otros agentes inmobiliarios y gana 10% de comisión por cada promoción que realicen.