U$S 3,700

S/ ~13,000

Baños

1

M² edificados

297

Tipo de Propiedad

Local Comercial

hace más de

5 años

Vistas

7523

Edificio Comercial, Local, Oficina, Muy Cerca Plaza De Armas

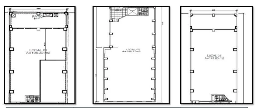
Edificio Comercial ubicado a media cuadra de la Plaza de Armas, cerca de tiendas comerciales, bancos, cajas, hoteles, etc. Modernos locales en primer y segundo piso, con sistema contra incendio en áreas comunes, ubicados en zona estratégica del centro de Ica. Zona rodeada de tiendas, retail, bancos, hoteles, restaurantes, cajas, etc. Ideal para academias de baile o estudio, notarias, consultorios médicos, oficinas administrativas, etc. Para locales, oficinas, en gris, zona comercial, en muy buen estado, piso 2, zonificación comercial, flat. Puerta a la calle. Disponible desde el ****.

Detalles de la Propiedad

ID

Tipo de Propiedad

Tipo de Operación

M² edificados

181149

Local Comercial

Alquiler

297

Habitaciones

Baños

Referencia

Actualizado

1

1

K99C3

2020-11-26

Ubicación

3.7к U$S

Ubicación

Ica

Dirección

Ica

Acciones Adicionales

Tasso Inmobiliaria
999...077 994...266
519...077
Objeto similar
Cargando...
¡Gana dinero refiriendo colegas!

Invita a otros agentes inmobiliarios y gana 10% de comisión por cada promoción que realicen.