U$S 6,000

S/ ~21,000

Bedrooms

1

Bathrooms

3

Garage

10

Area

375

Category

Office

more than

5 years ago

Views

8121

Oficina En Alquiler En Santiago De Surco

Av. Manuel Olguin Cdra. 3, Surco,
Ref: Frente al C.C Jockey Plaza

- 18 pisos
- 10 sótanos
- 11 ascensores
- Disparadores antisísmicos
- Sistemas de seguridad, CCTV y monitoreo
- Aire acondicionado centralizado
- Certificación LEED (green Building).

AREAS COMUNES: Directorios, Sala de Usos
Múltiples y Comedor (cafetería).

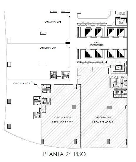
OFICINA PISO #201 - #202 :
- Área del piso es de
of: 201 - 221.43m2
of: 202 - 153.72
Total = 375.15m2
- 10 estacionamientos disponibles (sótano 2,6 o 7)
- En gris.

Precio de alquiler:
US$ 16 xm2 - US$ 6,000
Precio de alquiler de cocheras:
US$ 200 x c/u

Property details

ID

Category

Type

Area

Built Area

Rooms

181475

Office

Rent

375

375

2

Bathrooms

Bedrooms

Garage

Code

Updated

3

1

10

U0998

2020-11-25

Location

6к U$S

Location

Lima

Address

Santiago De Surco

Additional Actions

DIANA RIZQALLAH
997...660
519...660
Similar object
Loading...
Earn money by referring colleagues!

Invite other real estate agents and earn 10% commission for every promotion they make.