U$S 9,560

S/ ~33,500

Bedrooms

1

Bathrooms

3

Garage

4

Area

292

Category

Shop

more than

5 years ago

Views

4052

Local Comercial En Alquiler En San Isidro

Edificio Comercial en un área total de 1,704 m2.
Precio de $9,560.07 incluye 4 estacionamientos e IGV.
DESCRIPCIÓN:
2 Bloques integrados:
4 Sótanos: 188 estacionamientos.
Semisótano: Oficina y Archivo.
1º piso: 2 Locales Comerciales y 1 oficina.
2º al 4º: Oficinas de planta libre.

INGRESOS:
Ingreso vehicular: Av. Los Conquistadores: rampa hacia el semisótano y 4 sótanos de estacionamientos.
Ingreso peatonal (2): 2 ingresos por la Av. Conquistadores, uno para cada bloque (escaleras y rampas que suben 1.20m a la recepción).
Circulación: 4 ascensores de 14 personas c/u y 2 escaleras de emergencia.
ESTACIONAMIENTOS: (4 Sótanos)
4 niveles de estacionamientos con 188 estacionamientos y áreas de depósitos.
RECEPCIÓN: Primer piso elevado (1.20m):
Hall de ingreso a los ascensores y recepción para cada bloque.
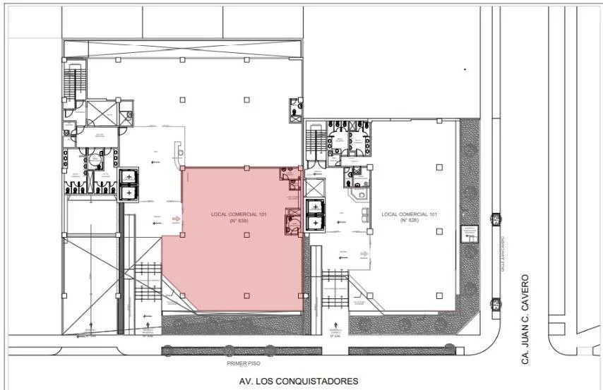
LOCALES COMERCIALES:
Primer piso. 2 locales Comerciales: (nivel 1.20m) uno con vista a la Av. Conquistadores y el otro en esquina, con vista a la Av. Conquistadores y la Calle Juan Cavero; ambos con terrazas y jardines elevados que los aíslan del contacto visual directo y sonoro de la calle. Cada Local Comercial tiene un módulo de baños de uso público (con baño para discapacitados) y otro para los empleados.
OFICINAS: (primer, segundo, tercer y cuarto piso) Hall de ingreso a los ascensores y recepción para cada bloque.
Oficinas: planta libre de oficinas.
Mantenimiento: El costo estimado es de $2.50 Dólares Americanos por metro cuadrado más IGV. Se deja constancia que el costo del mantenimiento será definido por la administración del Edificio.
LOCAL COMERCIAL 101 en US$7,301.75, a US$25.00 x m2. (SIN IGV).
4 ESTACIONAMIENTOS en 1er sótano en US$800.00, A US$200.00 cada uno (SIN IGV). Para comercial, semi implementada, 5 años de antiguedad, vista a la calle, impecable, piso 1, zonificación comercial, c/licencia, una planta. Hall de ingreso, 1 ambiente, 7.0 baños, baño común, pisos de otros en área social. 4 cocheras tipo paralelas en sotano, 4 ascensores. Planos, inst. Cableado estructurado, sótano, disponible desde el ****.

Property details

ID

Category

Type

Area

Built Area

Rooms

180031

Shop

Rent

292

292

2

Bathrooms

Bedrooms

Garage

Code

Updated

3

1

4

KF511

2020-12-01

Location

9.6к U$S

Location

Lima

Address

San Isidro

Additional Actions

ARAMBURU ALVAREZ CALDERON CECILIA
999...222
519...222
Similar object
Loading...
Earn money by referring colleagues!

Invite other real estate agents and earn 10% commission for every promotion they make.