U$S 5,678

S/ ~19,900

Bedrooms

1

Bathrooms

3

Garage

6

Area

255

Category

Office

more than

5 years ago

Views

8112

Implementada, Corporativo A1, Flat, Basadre, Vista A Calle, 3 BaÑos

ALQUILER Mensual: US$ 5,677.90 más IGV
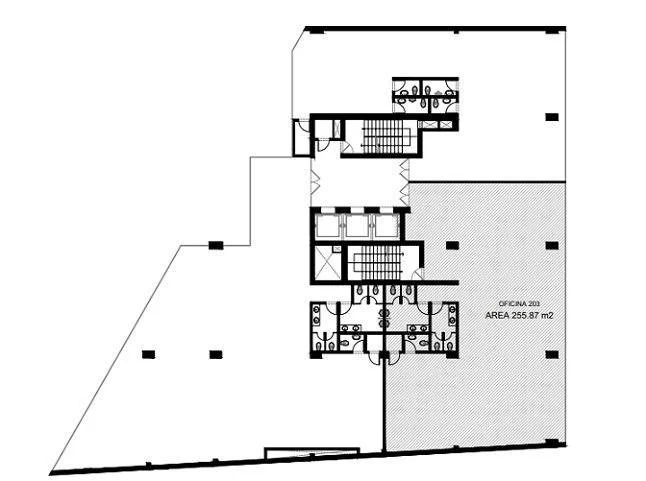
A.C.: 255.87 m2.
Implementada, 8 años de antigüedad, vista a la calle, en buen estado, piso 2. Zonificación comercial, flat.
1 ambiente, 3 baños.
6 cocheras tipo techada, ascensor.

Ingreso por el Hall de ascensores o escaleras de emergencia, cuenta con un área de 255.87 m2 con ingreso por la Av. Jorge Basadre y con baños independientes para hombres y mujeres.

Vista a Arequipa
Un depósito. 1 ambiente, 3 baños.
El edificio cuenta con vigilancia las 24hrs. Y servicio de administración.
Descripción:
5 sótanos: 140 estacionamientos y 6 áreas de depósitos.
Precio x cochera: $200 más IGV
6 estacionamientos requeridos.
1º piso: 5 locales comerciales.
Mezzanine: 1 oficina.
2º piso: 3 oficinas.
3º al 7º piso: 4 oficinas por piso.
8° piso: sala de esparcimiento para empleados y terrazas
ingresos:
Por la av. Jorge Basadre
-ingreso principal que conduce a la recepción general y a las oficinas. Circulación vertical compuesta por 3 ascensores de 15 personas c/u y 2 escaleras de emergencia.
-Ingresos independientes para los 2 locales comerciales.
-Ingreso vehicular a los estacionamientos, mediante una rampa de 6mts de ancho con control de acceso hacia los 5 sótanos. Para oficina, implementada, 8 años de antiguedad, vista a la calle, en buen estado, piso 2, zonificación comercial, flat. 1 ambiente, 3.0 baños, 1 depósito. Terraza, 6 cocheras tipo techada, ascensor. Planos, luminarias, cafetería, disponible desde el ****.

Property details

ID

Category

Type

Area

Built Area

Rooms

180665

Office

Rent

255

255

2

Bathrooms

Bedrooms

Garage

Code

Updated

3

1

6

M6503

2020-11-28

Location

5.7к U$S

Location

Lima

Address

San Isidro

Additional Actions

Tasso Inmobiliaria
999...077 994...266
519...077
Similar object
Loading...
Earn money by referring colleagues!

Invite other real estate agents and earn 10% commission for every promotion they make.