U$S 6,573

S/ ~23,000

Bedrooms

5

Bathrooms

3

Garage

6

Area

255

Category

Office

more than

5 years ago

Views

5947

Implementada, Corporativo A1, Basadre, Flat, Vista A Calle

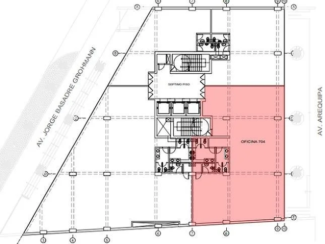
Av. JORGE BASADRE, Dpto. 704
Alt. Javier Prado y Arequipa
ALQUILER Mensual: US$ 6,573.48 más IGV
A.C.: 255.87 m2.
Para oficina, implementada, 8 años de antigüedad, vista a la calle, en buen estado, piso 7. Zonificación comercial, flat.
1 ambiente, 3 baños.
6 cocheras tipo techada, ascensor.

Ingreso por el Hall de ascensores o escaleras de emergencia, cuenta con un área de 255.87m2 con ingreso por la Av. Jorge Basadre. La oficina se encuentra implementada; cuenta con divisiones de ambientes en tabiquería de drywall, cielo raso, luminarias, pisos de porcelanato en recepción y en las oficinas alfombra modular, sistema de aire acondicionado, sistema contra incendio, luces de emergencia, rollers, baños independientes para hombres y mujeres.
Oficina en 7mo piso, equipada con baños hombres y mujeres. 6 estacionamientos.

Precio: $ 6,573.48 más IGV, con 6 cocheras
Área de oficina: 255.87m2
Vista a Arequipa
El edificio cuenta con vigilancia las 24hrs. Y servicio de administración.
Descripción:
5 sótanos: 140 estacionamientos y 6 áreas de depósitos.
Precio x cochera: $200 más IGV
6 estacionamientos requeridos.
1º piso: 5 locales comerciales.
Mezzanine: 1 oficina.
2º piso: 3 oficinas.
3º al 7º piso: 4 oficinas por piso.
8° piso: sala de esparcimiento para empleados y terrazas
ingresos:
Por la av. Jorge Basadre
-ingreso principal que conduce a la recepción general y a las oficinas. Circulación vertical compuesta por 3 ascensores de 15 personas c/u y 2 escaleras de emergencia.
-Ingresos independientes para los 2 locales comerciales.
-Ingreso vehicular a los estacionamientos, mediante una rampa de 6mts de ancho con control de acceso hacia los 5 sótanos. Para oficina, implementada, 8 años de antiguedad, vista a la calle, en buen estado, piso 7, zonificación comercial, flat. 1 ambiente, 3.0 baños, 1 depósito. Terraza, 6 cocheras tipo techada, ascensor. Planos, luminarias, cafetería, disponible desde el ****.

Property details

ID

Category

Type

Area

Built Area

Rooms

181711

Office

Rent

255

255

6

Bathrooms

Bedrooms

Garage

Code

Updated

3

5

6

X7AF6

2020-11-20

Location

6.6к U$S

Location

Lima

Address

San Isidro

Additional Actions

Tasso Inmobiliaria
999...077 994...266
519...077
Similar object
Loading...
Earn money by referring colleagues!

Invite other real estate agents and earn 10% commission for every promotion they make.